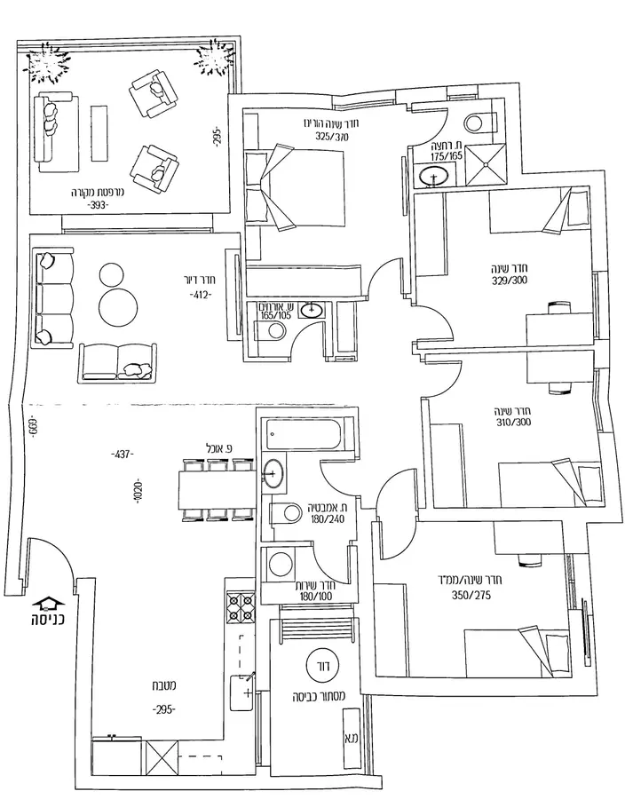
למכירה פריסייל פרויקט השקד קרית אונו דירה 5 חדרים גודל 119 מ"ר מרפסת 15 מ"ר
דגם B2
שטח הדירה 119 מ"ר
שטח המרפסת 13 מ"ר
פרויקט השקד של אשטרום וענב
🛗 שני בניינים חדשים גבוהים: 17 ו-24 קומות, בעיצוב מודרני ויוקרתי
📍 מיקום שקט ואינטימי עם נגישות מהירה לצירי תנועה ראשיים
🏢 לובי כניסה מעוצב אדריכלית ברמה גבוהה
🚝 3 מעליות בכל בניין
🎉 מועדון דיירים
🧳 חדר עגלות ואופניים
🚗 חניון תת קרקעי עם פתיחה מהירה באמצעות שלט / אפליקציה
🏠2 חניות נפרדות
📦 מחסן בקומת החנייה
פיר אשפה מסודר ונגיש
📝 תכנון אדריכלי מוביל של כהנא אדריכלים, מהמומחים בישראל
מפרט איכותי ועשיר:
✨ ריצוף גרניט פורצלן 100/100
🚪 כניסה מעוצבת רב בריח
🚪 דלתות פנים פנדור, בצבע בתנור, עם צירים נסתרים
🎥 מערכת אינטרקום עם מסך צבעוני
🛋 אופציה לריצוף פרקט למינציה במאסטר הורים
🪟 תריסי גלילה חשמליים של קליל
❄️ מיזוג מיני מרכזי אינווירטי כולל הנמכות תקרה
🌿 ברז גן במרפסת
🏡 מערכת בית חכם עם שליטה מהנייד באפליקציה
🔥 נקודת גז במרפסת
🍽️ מטבח של אביבי / סמל סטנדרטי עם שיש אבן קיסר
✅ כיור נירוסטה
🚽 אסלות תלויות
🛁 ארון רחצה תלוי
🚰 ברזים של GROHE
📞 לפרטים נוספים והזמנות
התקשרו ל-052-4777931 ( NadlaN Go )



